Sugestii si Reclamatii0722.402.657
19 Martie 2026

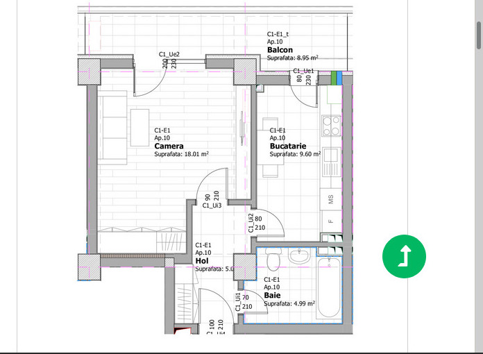
Apartament Nou 1 camere de vanzare Tatarasi, - FD52009

Caracteristici Apartament nou

  • Tip: Apartamente Noi
  • Pret: € 72232
  • Zona: Tatarasi
  • Bloc din: 2024
  • Compartimentare: Decomandat
  • Suprafata utila: 38mp
  • Nr. camere: 1
  • Nr. bai: 1
  • Etaj: Intermediar/8
  • Nr. balcoane: 1
  •    
  •    
  • Actualizat la: 25 Septembrie 2024
  • Cod oferta: FD52009

Imagini Apartament nou

Imbunatatiri Apartament nou

  • Acces: Drum Asfaltat
  • Acces internet: Cablu
  • Amenajat: Complet
  • Balcoane: Balcon Deschis
  • Climatizare: Aer conditionat
  • Contorizare: Apometre Contor gaz
  • Dotari imobil: Lift Spatii agrement Video interfon
  • Electrocasnice: Aragaz
  • Ferestre: Termopan PVC
  • Incalzire: Incalzire in pardoseala
  • Izolatii termice: Exterior Interior
  • Mobilat: Nemobilat
  • Pereti: Faianta Vopsea lavabila
  • Podele: Parchet Gresie
  • Servicii imobil: Administrare
  • Tip Grup Sanitar: Propriu
  • Usa intrare: Metal
  • Usi interior: Panel
  • Utilitati: Curent Apa Canalizare Gaz CATV Telefon

Contacteaza consilierul imobiliar

Florin Cretu

Trimite un mesaj Consilierului

Cauta dupa Cod